15 Edward Street, Te Aro
31309267
Space with Soul in Te Aro's Iconic Laneways
Step off the beaten path and into something special-15 Edward Street offers a rare chance to claim a refurbished character office in one of Wellington’s most vibrant laneways.
Nestled just off Victoria Street and moments from Manners Street, this top-floor tenancy blends urban charm with modern functionality.
Whether you’re a design studio, tech startup, or creative agency, this space has the kind of personality that inspires.
Think exposed features, open-plan flow, and a central kitchen zone that doubles as a social hub.
It’s the kind of office that makes Monday feel like less of a chore.
Highlights:
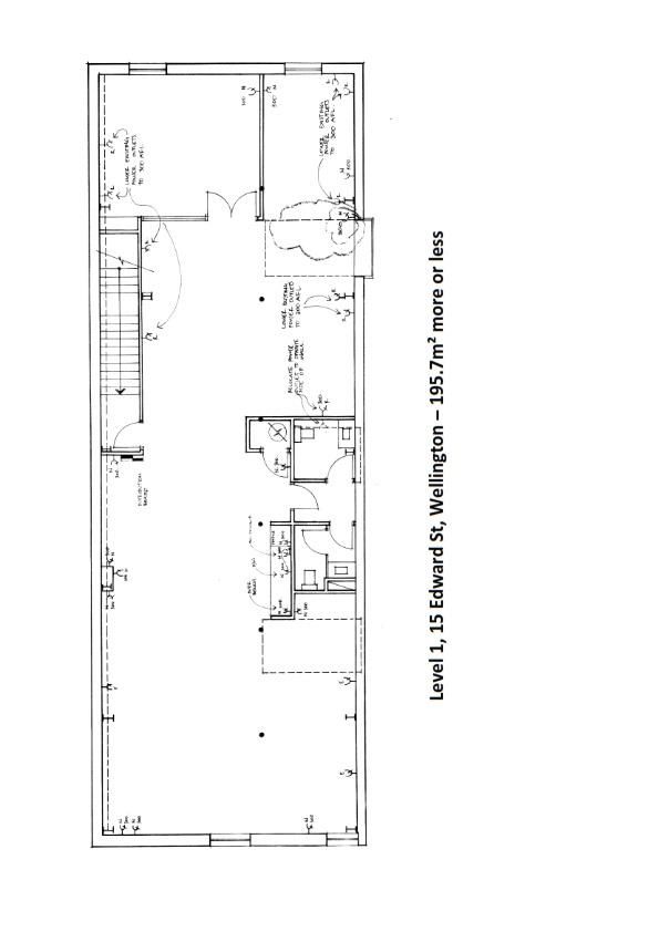
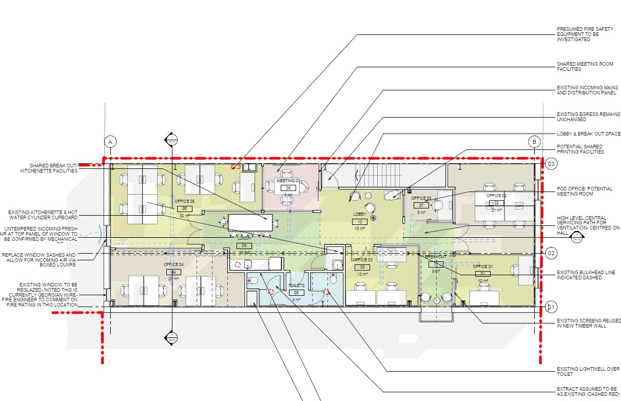
• Approx. 180m² of cool, character-filled workspace
• Whole top floor with great natural light
• Open-plan layout with central kitchen and boardroom
• Surrounded by cafes, gyms, bars, and public transport
• Refurbished with flair-something a little different
• Option to subdivide if needed
Available now. If you’re after a space that stands out and supports a team of 10-15, this could be your next HQ.
Call the listing agents to arrange a viewing and experience the vibe for yourself.
Property Information
More Commercial listings in Wellington

Compact in the City - Freehold

Work Smart - CBD Central

Affordable Office in Te Aro's Hospitality Hub

Te Aro Full Floor - Space, Style, Energy
Disclaimer
The information presented on this page has been prepared, or is based on information supplied, by the property owner or their legal representative. Whilst all reasonable effort is made to ensure the information accessible on this page is current, we do not perform any independent verification in respect of, and we give no warranty as to, the accuracy or completeness of the data and information accessible on or through this page. Information that has been supplied by the vendor or their agents, Tommy’s Real Estate Limited is merely passing over this information as supplied to us and, to the maximum extent permitted by law, we do not accept any responsibility to any party for the accuracy or use of the document or information herein. You should make your own enquiries and we encourage you to seek your own legal advice before acting on the basis of the provided data and information.

























