Level Ground Floor, 11 Courtenay Place, Te Aro
12486940
PRIME SITE - WELLINGTONS NEWEST DEVELOPMENT
On the ground floor – HYDE LANE offers multiple commercial tenancies which are set are set to activate the laneway.
Settling on the ground floor underneath Wellingtons newest premium apartment development, the commercial units, suiting an investor and owner occupier will not last long.,
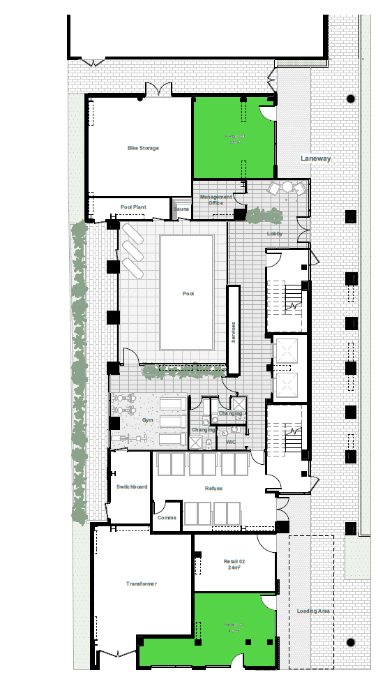
Tenants will also have access to the indoor pool, sauna, and gymnasium.
Well set back from the street frontage, Hyde Lane gives you both visual and acoustic privacy. A laneway connects you directly to Courtenay Place and its myriad offerings.
Highlights:
11 Courtenay Place, Wellington
100% NBS designed by global leading engineers
Within walking distance to Oriental Bay, Mt Vic, Waitangi Park and the best amenities on offer in Wellington CBD
Please contact me today for an information pack or visit our agents at the Hyde Lane Sales Suite – Located 38 Courtenay Place, Open Daily 10am-4pm.
For any commercial leasing and sales needs, contact Ben Castle on 021 616 220
Property Information
More Commercial listings in Wellington

Tawa Warehouse + Office | Great Incentives!

Premium Office Floor | Government Quarter

Refurbed Office Space- Value for Money Plus!

Compact in the City - Freehold
Disclaimer
The information presented on this page has been prepared, or is based on information supplied, by the property owner or their legal representative. Whilst all reasonable effort is made to ensure the information accessible on this page is current, we do not perform any independent verification in respect of, and we give no warranty as to, the accuracy or completeness of the data and information accessible on or through this page. Information that has been supplied by the vendor or their agents, Tommy’s Real Estate Limited is merely passing over this information as supplied to us and, to the maximum extent permitted by law, we do not accept any responsibility to any party for the accuracy or use of the document or information herein. You should make your own enquiries and we encourage you to seek your own legal advice before acting on the basis of the provided data and information.






