1/19 Blair Street, Te Aro
32630059
NEW YORK STYLE SPACE - HEART OF WELLINGTON
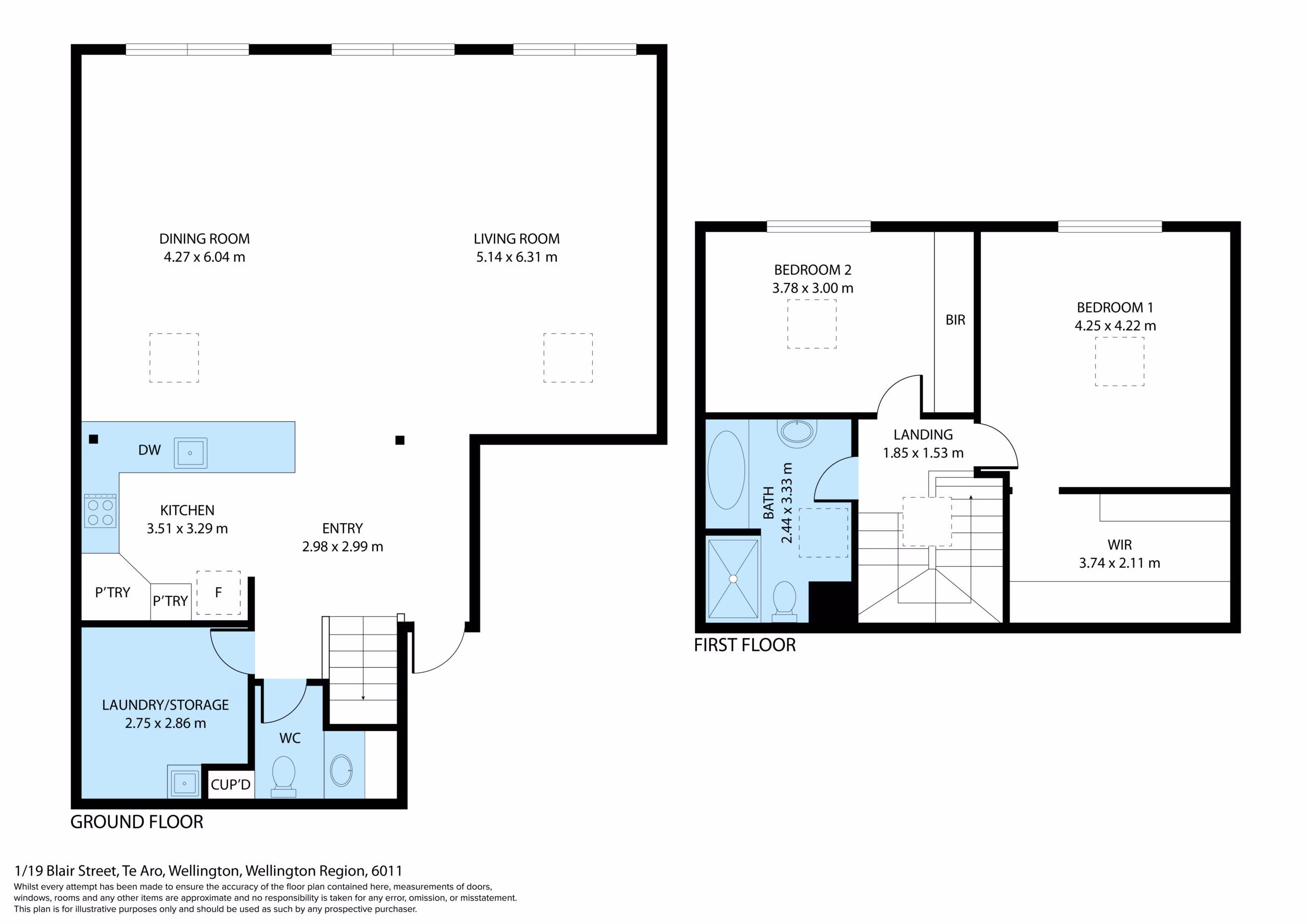
An exceptional 200sqm top floor multi-purpose space offering scale and chic urban character for a choice of apartment living, work-from-home or a dedicated place of business.
A unique abundant and bright open plan apartment with wooden floors, exposed brick & panoramic windows, perfectly positioned in Wellington’s vibrant Courtenay Quarter.
Features:
• Expansive layout with large high stud windows and sky lights flooding the apartment with natural light
• Eye catching interior combining modern with historic charm – a rare find in Wellington City
• Two generous double bedrooms, including the master with a walk-in robe
• Well equipped kitchen with gas, fridge, dishwasher and excellent storage space
• Extra storage room or home office connected to lounge
• Large tiled family bathroom with shower & bath, PLUS additional WC off lounge/kitchen
• Potential to add a third bedroom and add value
• Body Corp levies $23,658.35pa. NBS 50%
This apartment out classes others with substantial space, aspect and light. Prime location in the heart of Courtenay Quarter with mins walk to Oriental Bay, New World supermarket, top-notch restaurants and Embassy Theatre. Appeals to professionals seeking superior inner-city lifestyle or business owners wanting a prime location office space to operate out of.
For more information or to schedule a viewing, contact us today!
Property Information
More Residential listings in Wellington

SOLID ISLAND BAY STARTER WITH VIEWS.

SUNNY, SPACIOUS AND PERFECTLY POSITIONED

INVESTMENT OPPORTUNITY IN AN OUTSTANDING LOCATION

CITY LIVING AWAITS YOU
Disclaimer
The information presented on this page has been prepared, or is based on information supplied, by the property owner or their legal representative. Whilst all reasonable effort is made to ensure the information accessible on this page is current, we do not perform any independent verification in respect of, and we give no warranty as to, the accuracy or completeness of the data and information accessible on or through this page. Information that has been supplied by the vendor or their agents, Tommy’s Real Estate Limited is merely passing over this information as supplied to us and, to the maximum extent permitted by law, we do not accept any responsibility to any party for the accuracy or use of the document or information herein. You should make your own enquiries and we encourage you to seek your own legal advice before acting on the basis of the provided data and information.




























