Level 1, 1/90 The Terrace, Wellington Central
24207559
Prime Office Space For Lease in Wellington's CBD!
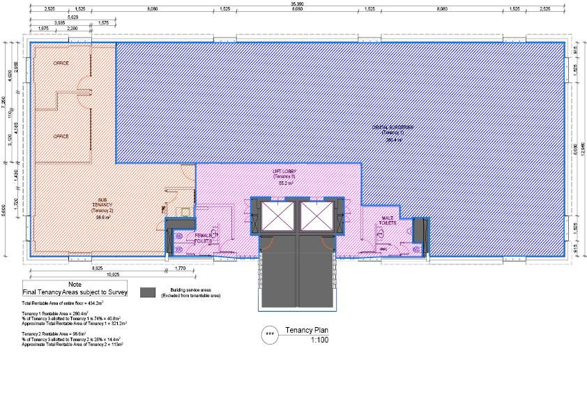
Seize the opportunity to lease a premium 113 sqm office space at Wakefield House, 90 The Terrace.
Nestled in the vibrant heart of Wellington’s central business district, this space offers outstanding value for money.
Key Features:
Ready to Move In: Fully set up and immediately available for your business needs.
Recently Renovated: Enjoy a fresh, modern office environment.
North-Facing: Benefit from abundant natural light with a sunny, north-facing outlook over the rear carpark.
Flexible Layout: Includes two separate offices (one currently used as a boardroom), a spacious open-plan area, a reception, and a generously sized kitchenette.
Modern Amenities: The building boasts a newly renovated lift lobby and pristine, modern toilet facilities.
Convenient Location: Close proximity to essential amenities and travel options.
HVAC: Equipped with a new air-conditioning, ventilation, and heating system. Fresh-air replacement and flow volume are fully compliant with the latest health standards.
Carparking- 1 car park is available at an extra cost.
NBS: 124% (BECA 2007)
Our motivated landlord offers a very competitive rental rate, ensuring you get the best value in Wellington’s CBD. Don’t miss out – call now to schedule an inspection and secure this fantastic office space.
Contact Mark Hamilton on 021 573 506 2745 or Andrew Jones on 021 179 0676 for further information or to arrange a viewing.
Property Information
Disclaimer
The information presented on this page has been prepared, or is based on information supplied, by the property owner or their legal representative. Whilst all reasonable effort is made to ensure the information accessible on this page is current, we do not perform any independent verification in respect of, and we give no warranty as to, the accuracy or completeness of the data and information accessible on or through this page. Information that has been supplied by the vendor or their agents, Tommy’s Real Estate Limited is merely passing over this information as supplied to us and, to the maximum extent permitted by law, we do not accept any responsibility to any party for the accuracy or use of the document or information herein. You should make your own enquiries and we encourage you to seek your own legal advice before acting on the basis of the provided data and information.
















