7 Zeala Grove, Stokes Valley
32947520
We need this sold!
The owners of this lovely home have made it clear, they need to see a SOLD sign, now is your chance to secure space, versatility and future potential in one smart move.
Tucked away down a quiet cul-de-sac, affording you amazing privacy, this substantial family home offers space, versatility and exciting scope to personalise and add further value over time. Designed with modern family living in mind, it’s an ideal option for large families, blended households or multi-generational living.
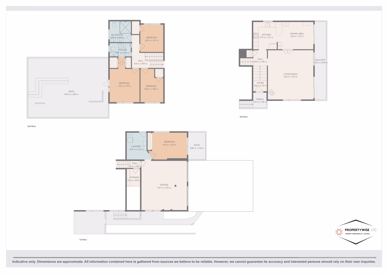
The heart of the home is the expansive living area, seamlessly flowing through to the dining and kitchen space – perfect for everyday living and effortless entertaining. Whether hosting friends or enjoying relaxed family time, this home has been made for gathering.
The fourth bedroom is located downstairs with its own access, offering excellent flexibility for extended family, guests, teenagers, or even a work-from-home setup.
To the rear is expansive decking, ideal for children, pets and entertaining and if you have a green thumb there is a further area that could be further enhanced, planted and landscaped.
Double garaging provides secure parking and storage and the large separate laundry caters to a families needs while also affording extra storage space.
Set in a sought-after, peaceful location, this is a home that will grow and adapt with your family.
Property Information
More Residential listings in Lower Hutt

Like a new home

Builders Own Home In Tranquil Bush Setting

Modern, easy-care living

One of the Beach Street Cuties
Disclaimer
The information presented on this page has been prepared, or is based on information supplied, by the property owner or their legal representative. Whilst all reasonable effort is made to ensure the information accessible on this page is current, we do not perform any independent verification in respect of, and we give no warranty as to, the accuracy or completeness of the data and information accessible on or through this page. Information that has been supplied by the vendor or their agents, Tommy’s Real Estate Limited is merely passing over this information as supplied to us and, to the maximum extent permitted by law, we do not accept any responsibility to any party for the accuracy or use of the document or information herein. You should make your own enquiries and we encourage you to seek your own legal advice before acting on the basis of the provided data and information.














































