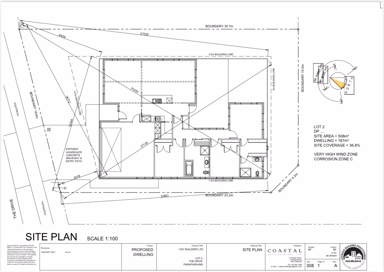
102 The Drive, Paraparaumu
5917474
Land & Build Package - Coastal Living at Its Best
Secure your brand-new home in this premium coastal location with a beautifully designed land and build package offering comfort, style, and effortless modern living.
This thoughtfully planned home features three double bedrooms, including a spacious master suite with an ensuite and a stylish main bathroom, and two generous living areas-ideal for families, entertaining, or simply enjoying extra space. The double internal-access garage ensures convenience and storage, while the contemporary layout maximises natural light and flow.
Set in a desirable coastal environment, you’ll enjoy sea breezes, relaxed living, and easy access to beaches, walkways, and local amenities.
This home is to be built by Kapiti’s renowned Carl van der Meer Builders Limited with quality construction and high specifications on a low-maintenance section. This is the perfect opportunity to create the lifestyle you’ve been dreaming of.
Your coastal dream home starts here-secure your land and build package today.
Call Rose Hu 0275 705423 for further information – Make 2026 a new year for a brand new home in Kapiti !
Property Information
More Residential listings in Kapiti Coast

Effortless Living - Private Waikanae Haven

Raumati Beach Townhouse - BEO $600,000

A Smart Dual-Key Investment in the Heart of Kapiti

Manly Street Location - Excellent Family Living
Disclaimer
The information presented on this page has been prepared, or is based on information supplied, by the property owner or their legal representative. Whilst all reasonable effort is made to ensure the information accessible on this page is current, we do not perform any independent verification in respect of, and we give no warranty as to, the accuracy or completeness of the data and information accessible on or through this page. Information that has been supplied by the vendor or their agents, Tommy’s Real Estate Limited is merely passing over this information as supplied to us and, to the maximum extent permitted by law, we do not accept any responsibility to any party for the accuracy or use of the document or information herein. You should make your own enquiries and we encourage you to seek your own legal advice before acting on the basis of the provided data and information.





















